New Build     Resale    
Properties

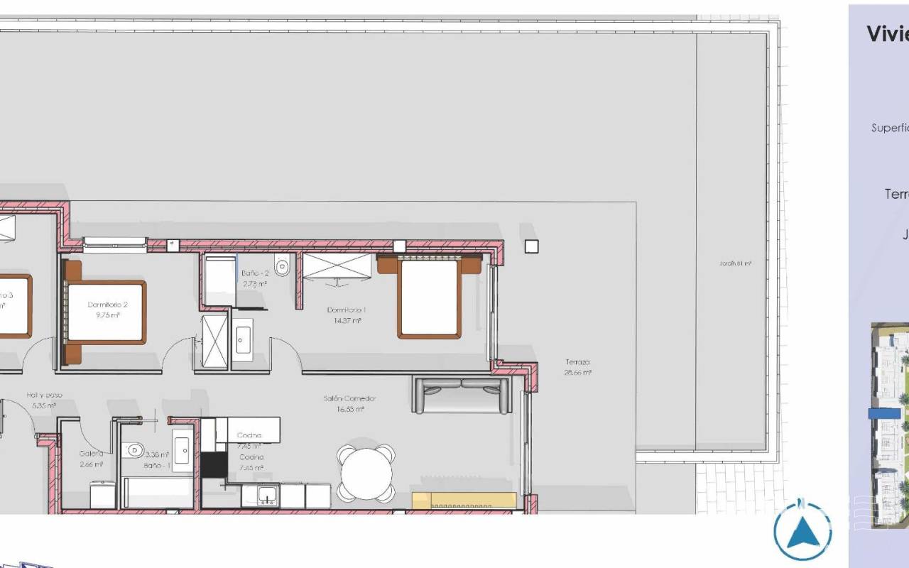
Apartment · New Build Alicante (Costa Blanca) · La Marina / Guardamar · EL RASO

Ref.: 89248
82m2 <81m2 3 2 Yes

Key features

Bedrooms: 3
Bathrooms: 2
Built area: 82m2
Plot: 81m2
Energy Rating: B

Features

Gated
Near Schools
Near Commercial Center
Communal Pool
Near Childrens Parks
Elevator/Lift
Parking - Space
Storage / Trastero
Number of Parking Spaces: 1
Double Bedrooms: 3
Location: Coastal, Urbanisation
Terrace: 26 Msq.
Beach: 3500 Meters
Useable Build Space: 75 Msq.
Garden
Gym
Furnished
Energy Rating
Energy rating: B

Description

Modern Furnished Apartments in El Raso-Guardamar Contemporary Living Near the Beach and Golf Exclusive Residential Development in Guardamar del Segura Discover this exceptional new build development of 120 stylish apartments located in El Raso, a highly sought after area of Guardamar del Segura on the Costa Blanca. Surrounded by natural landscapes and close to the Mediterranean coast, this residential complex offers a perfect balance between tranquility and accessibility. El Raso is known for its peaceful environment while being just minutes away from the vibrant town center, sandy beaches and a wide range of services including restaurants, shops and leisure facilities. Contemporary Homes Designed for Comfort and Style The development offers 2 and 3 bedroom apartments with different layouts to suit every lifestyle. Choose from ground floor properties with private gardens, middle floor apartments with spacious terraces, or penthouses with private solariums ideal for enjoying the Mediterranean climate all year round. All homes come fully furnished and ready to move into, including fully equipped kitchens with appliances and complete bathroom fittings with furniture, mirrors and shower screens. Each property also includes underground parking and a storage room, ensuring convenience and practicality from day one. High Quality Features and Energy Efficient Living These modern homes are built with attention to detail and designed for maximum comfort. Features include ducted air conditioning, electric shutters, and a full lighting package. The combination of quality materials and smart design creates bright and functional living spaces that enhance everyday life while ensuring energy efficiency. Outstanding Communal Areas and Lifestyle Amenities The residential complex offers a wide range of premium communal facilities designed for relaxation and wellbeing. Residents can enjoy a large swimming pool surrounded by landscaped gardens, a fully equipped gym, indoor spa, petanque area and children’s playground. Every detail has been carefully considered to create a community where comfort, leisure and social living come together. Prime Location with Excellent Connectivity El Raso enjoys a strategic location close to key points of interest: Guardamar town center 4 km Moncayo Beach 5 km Ciudad Quesada 5 km Torrevieja and Habaneras Shopping Center 8 km La Marquesa Golf 6 km La Finca Golf 12 km Vistabella Golf 18 km Alicante Airport 30 km Murcia Corvera Airport 75 km Your Ideal Home or Investment on the Costa Blanca Whether you are looking for a permanent residence, a holiday home or a smart investment opportunity, these fully furnished apartments in Guardamar del Segura offer exceptional value in a prime coastal location. Contact us today to receive more information or to arrange a viewing and secure your new home in the Costa Blanca.

Location

Economy

Currency converter text

POWERED BY HABENO

Currency exchange

  • Pounds: 295.130 GBP
  • Russian ruble: 295.130 RUB
  • Swiss franc: 312.766 CHF
  • Chinese yuan: 2.722.278 CNY
  • Dollar: 398.208 USD
  • Swedish krone: 3.678.800 SEK
  • Norwegian krone: 3.723.850 NOK

Request information

Responsable del tratamiento: MAINDAMA GROUP S.L, Finalidad del tratamiento: Gestión y control de los servicios ofrecidos a través de la página Web de Servicios inmobiliarios, Envío de información a traves de newsletter y otros, Legitimación: Por consentimiento, Destinatarios: No se cederan los datos, salvo para elaborar contabilidad, Derechos de las personas interesadas: Acceder, rectificar y suprimir los datos, solicitar la portabilidad de los mismos, oponerse altratamiento y solicitar la limitación de éste, Procedencia de los datos: El Propio interesado, Información Adicional: Puede consultarse la información adicional y detallada sobre protección de datos Aquí.