New Build     Resale    
Properties

Detached Villa · New Build Alicante (Costa Blanca) · Pinoso · Camino Del Prado

Ref.: 37907
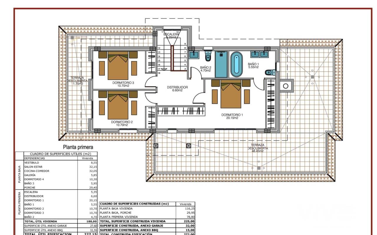
225m2 <10.000m2 4 3 Yes

Key features

Bedrooms: 4
Bathrooms: 3
Built area: 225m2
Plot: 10.000m2
Energy Rating: B

Features

Double Bedrooms: 4
Location: Rural
Terrace: 78 Msq.
Beach: 50000 Meters
Useable Build Space: 188 Msq.
Garden
Private pool
Gated
Near Schools
Air Conditioning: Pre-Installed
Parking - Space
Number of Parking Spaces: 1
Energy Rating
Energy rating: B

Description

NEW BUILD VILLAS IN PINOSO You can choose Villas with traditional Spanish touches or super modern finishing, bright and clean. Different legal building plots available (rustic with minimum 10.000 m2), some walking distance to town, some totally private and our most popular ones are within 5-10 mins drive to a town. We have a plot for every taste, all with amazing views and all have mains water + electric included in the price and high speed internet available. From the biggest and best builder in the area and use top quality materials for a perfect finish. All houses include 2m stamped concrete terrace around the pool (colour and pattern to choose), 1m around the house, gated entrance, 3.000 m2 fencing, pre-installed ducted aircon, standard kitchen, security door, german tilt and turn windows (or sliding if prefered), built-in fireplace and chimney, pre-installation for tv and internet, gravel driveway plus a few meters around the house, septic tank. Bathrooms include a shower column, shower tray or bath, sink units (various colours to choose from) with sinks, taps and mirrors, plus a big selection of wall tiles. Wide selection of ceramic floor tiles, different colours, wood effect, etc. Kitchens include cabinets with standard doors and handles, as per plans provided, stainless steel sink and tap, pre-installation for oven, dishwasher, extractor. Various granite worktops to choose from included in the budget, other stone worktops available as extras. White goods not included. Marble staircase (cream, white, or grey) and railings included, plus railings for the front porch. Big fixed glass window on the staircase for extra light. Choice of tiles and steps design for swimming pool. Choice of the granite for the houses' exterior steps and window sils. You can customise the house to suit, most internal changes are free of charge, the houses can be extended and we can even build your own design. Upgrade to bigger pool, single or double garage, guest house, etc. at an extra cost. The beautiful and thriving town of Pinoso is approximately 45 minutes inland from Alicante and the white beaches of Costa Blanca and close to the Murcia, Alicante border It has a population of just under 8,000. Pinoso, also known as El Pinos is named after the pine trees that cover the areas mountain ranges. Pinoso provides a Spanish rural lifestyle, no traffic lights, hardly any traffic, practically the only jams are caused by the tractors taking the grapes to the Bodega. The fields are planted with vines, almonds and olives. In February the fields are filled with pink almond blossom. Pinoso has many bars, restaurants and shops, a new 24 hour medical centre, dentists, two primary schools and 1 secondary school, a theatre. There's an excellent Sports Centre with outdoor swimming pools, tennis courts, football pitches and gymnasium, library and many other facilities including a beautiful picnic area among the pines, complete with barbecues, seating areas and running water.

Location

Economy

Currency converter text

POWERED BY HABENO

Currency exchange

  • Pounds: 439.603 GBP
  • Russian ruble: 439.603 RUB
  • Swiss franc: 461.772 CHF
  • Chinese yuan: 3.999.297 CNY
  • Dollar: 587.214 USD
  • Swedish krone: 5.545.910 SEK
  • Norwegian krone: 5.476.725 NOK

Request information

Responsable del tratamiento: MAINDAMA GROUP S.L, Finalidad del tratamiento: Gestión y control de los servicios ofrecidos a través de la página Web de Servicios inmobiliarios, Envío de información a traves de newsletter y otros, Legitimación: Por consentimiento, Destinatarios: No se cederan los datos, salvo para elaborar contabilidad, Derechos de las personas interesadas: Acceder, rectificar y suprimir los datos, solicitar la portabilidad de los mismos, oponerse altratamiento y solicitar la limitación de éste, Procedencia de los datos: El Propio interesado, Información Adicional: Puede consultarse la información adicional y detallada sobre protección de datos Aquí.
WhatsApp