Rynek Pierwotny     Rynek wtórny    

Willa · Rynek pierwotny Alicante (Costa Blanca) · Torrevieja · Los balcones

Ref.: 34288
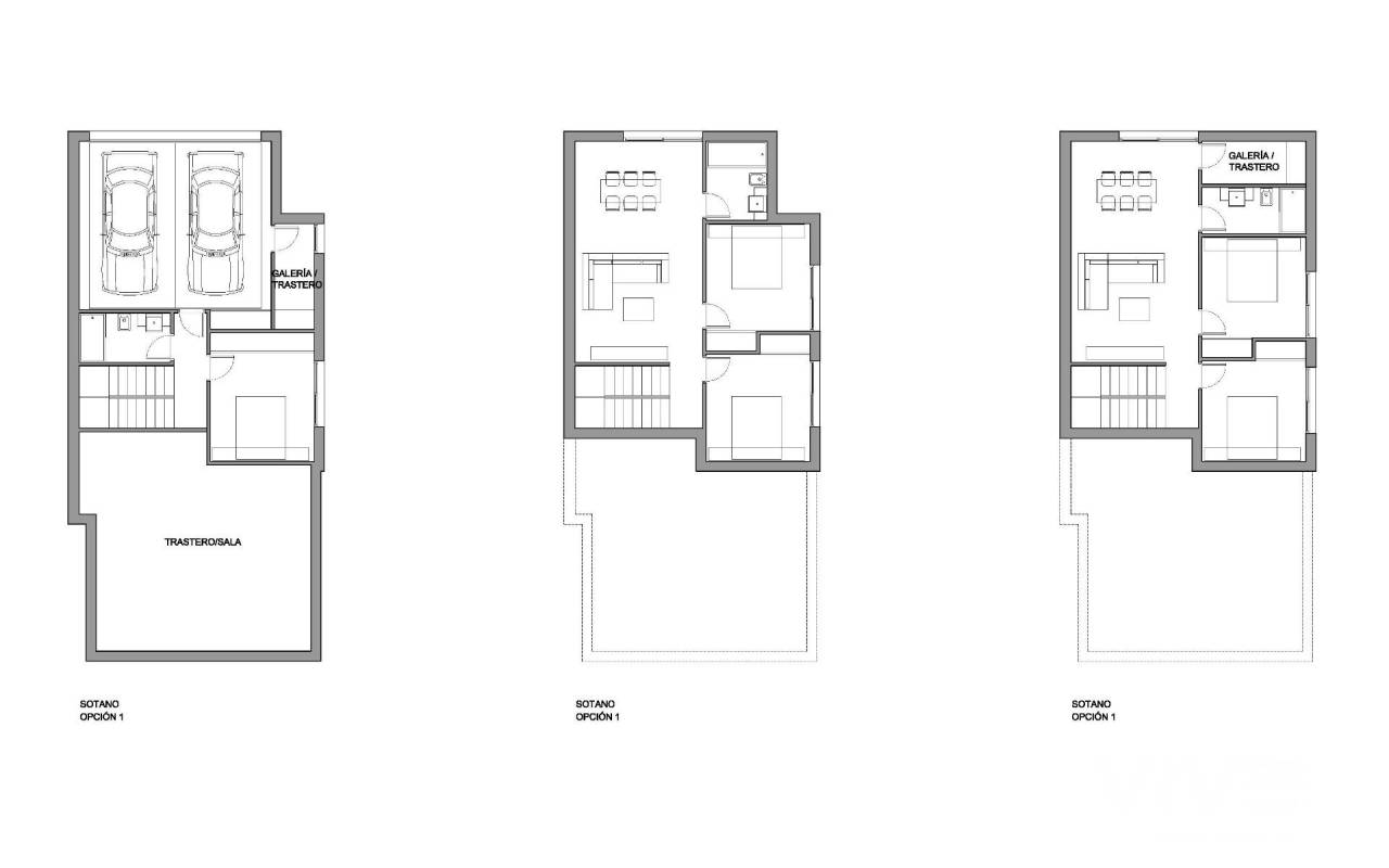
120m2 <434m2 3 2 Tak

Kluczowe cechy

Sypialnie: 3
Łazienki: 2
Powierzchnia: 120m2
Działka: 434m2
Ocena energetyczna: B

Szczegóły oferty

Ogród
Ocena energetyczna
Ocena energetyczna: B

Lokalizacja

Ekonomia

Informacja podana tutaj jest orientacyjna i nie stanowi części żadnej umowy. Oferta może zostać zmieniona lub wycofana bez uprzedniego powiadomienia. Ceny nie obejmują kosztów zakupu

POWERED BY HABENO

Wymiana walut

  • Funty: 609.350 GBP
  • Rubel rosyjski: 609.350 RUB
  • : 640.080 CHF
  • Chiński Yuan: 5.543.580 CNY
  • Dolar: 813.960 USD
  • Korona szwedzka: 7.687.400 SEK
  • Korona norweska: 7.591.500 NOK

Poproś o informacje

Responsable del tratamiento: MAINDAMA GROUP S.L, Finalidad del tratamiento: Gestión y control de los servicios ofrecidos a través de la página Web de Servicios inmobiliarios, Envío de información a traves de newsletter y otros, Legitimación: Por consentimiento, Destinatarios: No se cederan los datos, salvo para elaborar contabilidad, Derechos de las personas interesadas: Acceder, rectificar y suprimir los datos, solicitar la portabilidad de los mismos, oponerse altratamiento y solicitar la limitación de éste, Procedencia de los datos: El Propio interesado, Información Adicional: Puede consultarse la información adicional y detallada sobre protección de datos Aquí.
WhatsApp