Obra Nueva     Reventa    
Propiedades

Apartamento · Nueva construcción Alicante (Costa Blanca) · San Fulgencio · Pueblo

Ref.: 76996
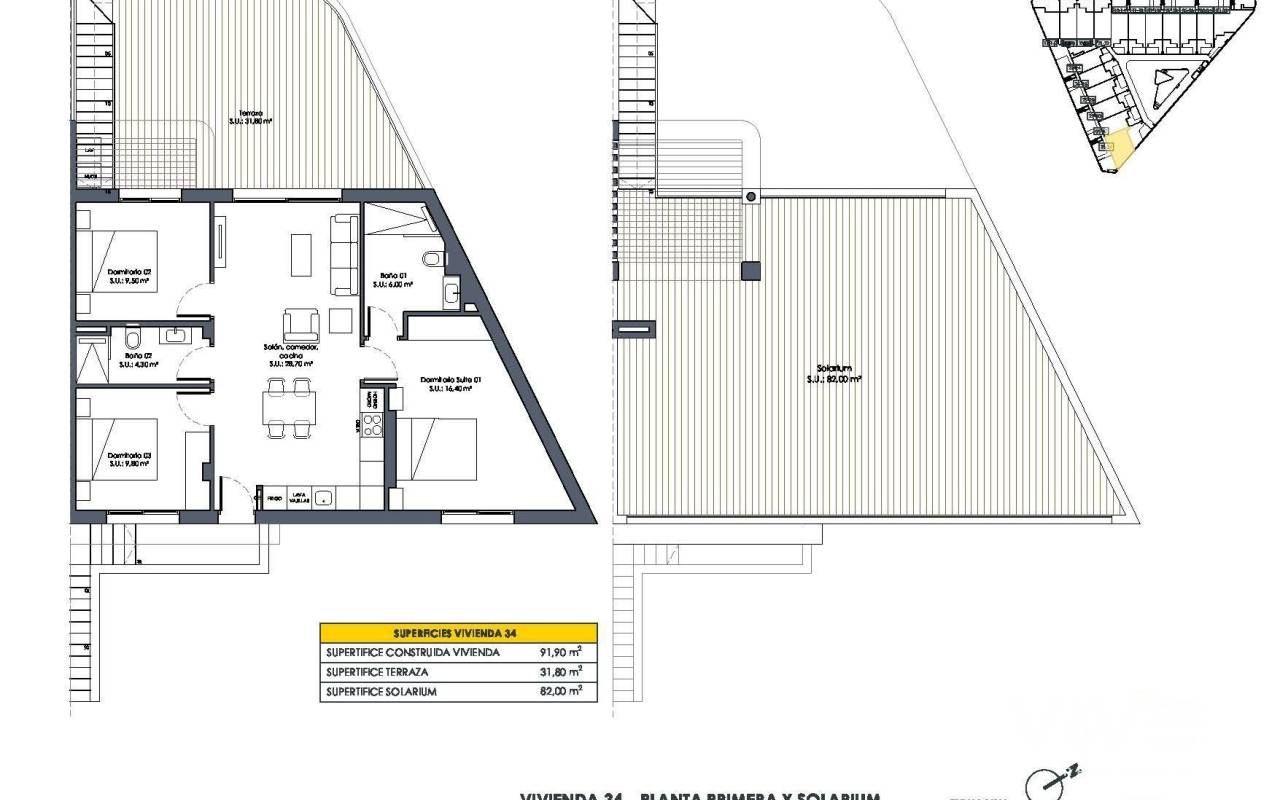
92m2 3 2

Características clave

Habitaciones: 3
Baños: 2
Construidos: 92m2
Calificación energética: B

Características

Gated
Near Schools
Air Conditioning: Pre-Installed
Communal Pool
Solarium: Yes
Parking - Space
Number of Parking Spaces: 1
Double Bedrooms: 3
Beach: 7000 Meters
Location: Rural, Urbanisation
Useable Build Space: 85 Msq.
Terrace: 114 Msq.
Calificación energética
Calificación energética: B

Descripción

Complejo Residencial de Nueva Construcción en San Fulgencio Apartamentos contemporáneos con características excepcionales Descubra esta nueva promoción residencial en San Fulgencio, que ofrece apartamentos de 2 y 3 dormitorios diseñados para ofrecer confort, estilo y comodidad. El complejo cuenta con: Plantas bajas con jardín privado Áticos con solarium privado, pérgolas, tomas de corriente y tomas de agua. Cada propiedad incluye una plaza de aparcamiento privado, y el desarrollo cuenta con una piscina comunitaria de estilo mediterráneo con una lámina de agua de 85 m², rodeado de hermosos jardines. Acabados de alta calidad y diseño moderno Estas viviendas están construidas con materiales de primera calidad y elementos modernos para garantizar la eficiencia energética y un alto nivel de vida: Persianas eléctricas en dormitorios Carpintería exterior de doble acristalamiento con rotura de puente térmico Cuartos de baño totalmente equipados con tocadores, espejos y mamparas de ducha Iluminación LED en toda la vivienda Preinstalación de aire acondicionado por conductos para climatización Ubicación privilegiada cerca de playas, golf y servicios San Fulgencio es una encantadora ciudad española con una selección de restaurantes, tiendas y servicios esenciales a poca distancia. Su estratégica ubicación ofrece un rápido acceso a algunas de las mejores atracciones de la Costa Blanca: Aeropuerto Internacional de Alicante-Elche - 30 km (30 min) Playa de La Marina - 7 km (10 min) Guardamar del Segura - 10 km (12 min) Campo de Golf La Marquesa (Ciudad Quesada) - 6 km (8 min) Torrevieja centro ciudad - 18 km (20 min) Centros comerciales, restaurantes y opciones de ocio - a poca distancia en coche El hogar ideal para vivir en la costa Esta nueva promoción en San Fulgencio es perfecta para aquellos que buscan una casa de vacaciones moderna, una propiedad de inversión o una residencia permanente en la Costa Blanca. Con su excelente ubicación cerca de la playa, campos de golf y servicios esenciales, ofrece un estilo de vida tranquilo pero bien comunicado. No pierda la oportunidad de ser propietario de una vivienda a estrenar en San Fulgencio. ¡Póngase en contacto con nosotros hoy mismo para obtener más detalles o para programar una visita!

Localización

Economía

Esta información que se proporciona aquí está sujeta a errores y no forma parte de ningún contrato. La oferta se puede cambiar o retirar sin previo aviso. Los precios no incluyen los costes de compra

POWERED BY HABENO

Cambio de divisas

  • Libras: 275.861 GBP
  • Rublo Ruso: 275.861 RUB
  • Franco Suizo: 289.773 CHF
  • Yuan Chino: 2.509.658 CNY
  • Dolar: 368.491 USD
  • Corona Sueca: 3.480.196 SEK
  • Corona Noruega: 3.436.781 NOK

Solicitar Información

Responsable del tratamiento: MAINDAMA GROUP S.L, Finalidad del tratamiento: Gestión y control de los servicios ofrecidos a través de la página Web de Servicios inmobiliarios, Envío de información a traves de newsletter y otros, Legitimación: Por consentimiento, Destinatarios: No se cederan los datos, salvo para elaborar contabilidad, Derechos de las personas interesadas: Acceder, rectificar y suprimir los datos, solicitar la portabilidad de los mismos, oponerse altratamiento y solicitar la limitación de éste, Procedencia de los datos: El Propio interesado, Información Adicional: Puede consultarse la información adicional y detallada sobre protección de datos Aquí.
WhatsApp