Obra Nueva     Reventa    
Propiedades

Apartamento · Nueva construcción Alicante (Costa Blanca) · Alicante · Carolinas Bajas

Ref.: 55673
82m2 2 2

Características clave

Habitaciones: 2
Baños: 2
Construidos: 82m2
Calificación energética: B

Características

Near Schools
Air Conditioning: Pre-Installed
Near Commercial Center
Communal Pool
Near Bus Route
Near Train Station
Location: Coastal, Urbanisation
Double Bedrooms: 2
Space
Terrace: 5 Msq.
Beach: 1000 Meters
Useable Build Space: 74 Msq.
Calificación energética
Calificación energética: B

Descripción

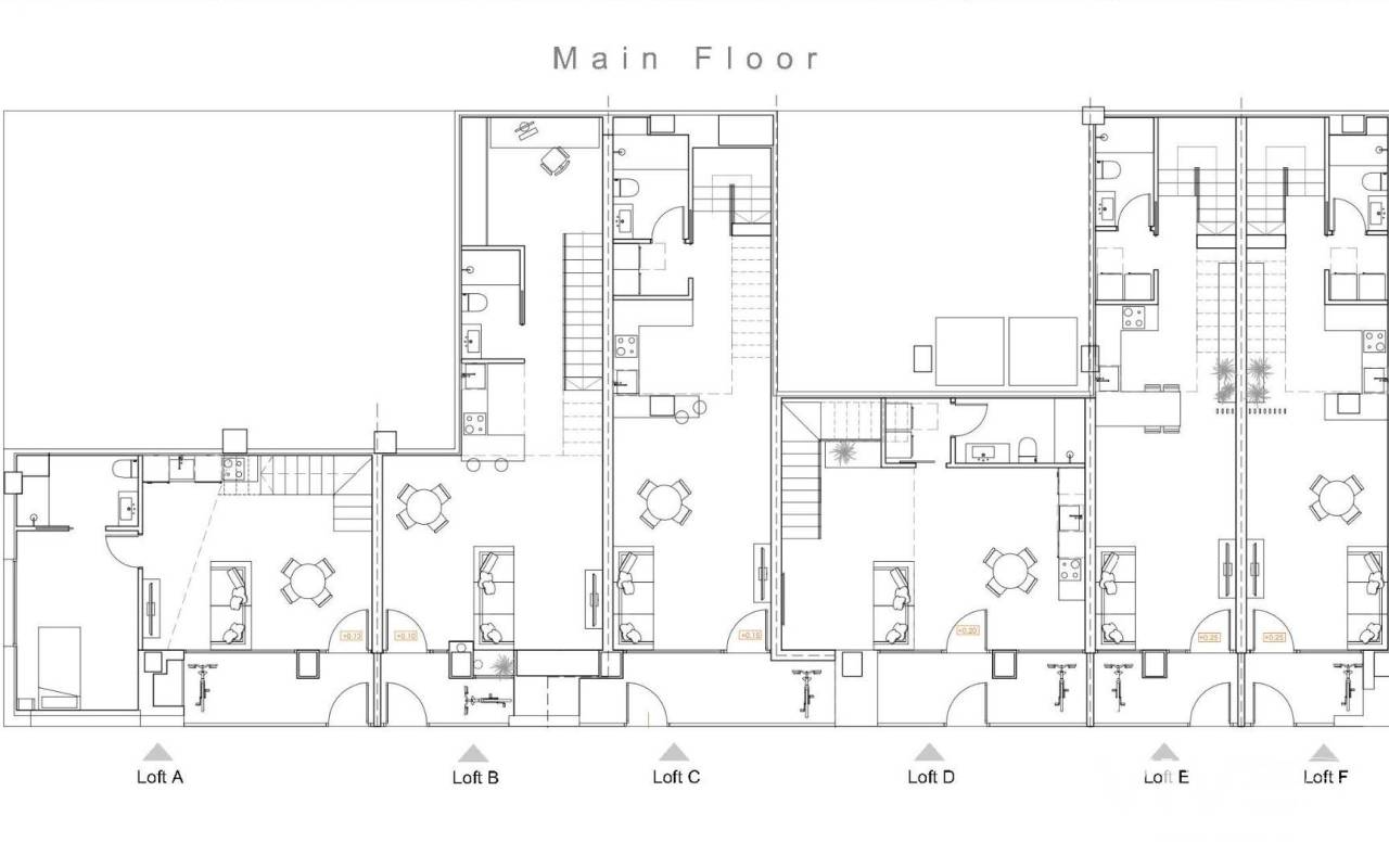
Modernos apartamentos dúplex tipo loft en el corazón de Alicante Exclusiva promoción nueva en el barrio de Benalúa Descubra una oportunidad excepcional para adquirir un elegante apartamento dúplex tipo loft en Benalúa, uno de los barrios más animados y bien comunicados de Alicante. Este proyecto único transforma seis locales comerciales en desuso en modernos lofts residenciales, ofreciendo un estilo de vida urbano a solo 1 km de la costa mediterránea. Benalúa es conocido por sus tiendas locales, cafeterías, actividad cultural y su proximidad al centro de la ciudad, lo que lo convierte en una zona muy codiciada tanto por residentes como por inversores. Diseño contemporáneo estilo loft Cada vivienda ha sido completamente rediseñada para ofrecer un espacio fresco, abierto y elegante. La promoción incluye lofts dúplex de 1 y 2 dormitorios con 2 baños, todos ellos con impresionantes zonas de doble altura que potencian la luz natural y proporcionan un auténtico ambiente loft. La planta superior alberga un dormitorio y un baño completo, lo que crea privacidad y comodidad. Con acceso independiente desde la calle y terraza privada, cada apartamento combina la arquitectura moderna con la funcionalidad. Los acabados de alta calidad, las distribuciones contemporáneas y los interiores luminosos hacen de estos lofts una opción destacada para aquellos que buscan estilo y funcionalidad. Comodidad y servicios comunitarios Los residentes disfrutarán de acceso a una piscina comunitaria situada dentro del edificio, que proporciona un ambiente relajante y refrescante para los cálidos días mediterráneos. Las terrazas privadas y las entradas independientes añaden un plus de comodidad y exclusividad. Ubicación privilegiada cerca de los principales puntos de interés Con una ubicación perfecta tanto para vivir como para invertir, la promoción está rodeada de servicios esenciales y principales atracciones: Paseo marítimo de Alicante: 1 km Estación de tren de Renfe: 0,8 km Centro comercial El Corte Inglés: 0,7 km Palacio de Justicia de Alicante: 0,5 km Aeropuerto de Alicante: 12 km Puerto deportivo y puerto de Alicante: 2 km Campos de golf (Alicante Golf): 7 km La zona ofrece excelentes conexiones de transporte público, lugares culturales, zonas verdes y fácil acceso a las hermosas playas de la ciudad. Una inversión inteligente en el estilo de vida costero de Alicante Tanto si busca una vivienda habitual, una propiedad vacacional o una inversión con un gran potencial de alquiler, estos apartamentos dúplex tipo loft en Benalúa representan una oportunidad única en una de las zonas más prometedoras de Alicante. Póngase en contacto con nosotros hoy mismo para reservar su loft exclusivo y disfrutar de una vida moderna en el corazón de Alicante. * Acceso a piscina pendiente de aprobación por parte de la comunidad cuando se realice el cambio de uso de los locales.

Localización

Economía

Esta información que se proporciona aquí está sujeta a errores y no forma parte de ningún contrato. La oferta se puede cambiar o retirar sin previo aviso. Los precios no incluyen los costes de compra

POWERED BY HABENO

Cambio de divisas

  • Libras: 278.473 GBP
  • Rublo Ruso: 278.473 RUB
  • Franco Suizo: 292.517 CHF
  • Yuan Chino: 2.533.416 CNY
  • Dolar: 371.980 USD
  • Corona Sueca: 3.513.142 SEK
  • Corona Noruega: 3.469.316 NOK

Solicitar Información

Responsable del tratamiento: MAINDAMA GROUP S.L, Finalidad del tratamiento: Gestión y control de los servicios ofrecidos a través de la página Web de Servicios inmobiliarios, Envío de información a traves de newsletter y otros, Legitimación: Por consentimiento, Destinatarios: No se cederan los datos, salvo para elaborar contabilidad, Derechos de las personas interesadas: Acceder, rectificar y suprimir los datos, solicitar la portabilidad de los mismos, oponerse altratamiento y solicitar la limitación de éste, Procedencia de los datos: El Propio interesado, Información Adicional: Puede consultarse la información adicional y detallada sobre protección de datos Aquí.
WhatsApp