Obra Nueva     Reventa    
Propiedades

Apartamento · Segunda mano Alicante (Costa Blanca) · Orihuela Costa · PAU 26

Ref.: PF-12984
76m2 2 2

Características clave

Habitaciones: 2
Baños: 2
Construidos: 76m2
Calificación energética: B

Características

Electrodomesticos
Terraza
Community Pool
Residencial
Puerta blindada
Garaje
Solarium
Calefacción
Balcón
Luz
Agua
Pérgola
Lavandería
Telefono
Wardrobes cupboard
Storeroom
Furniture
Calificación energética
Calificación energética: B

Descripción

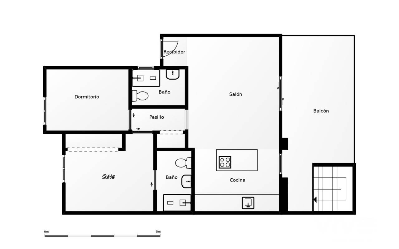
Descubra esta espectacular vivienda tipo bungalow en planta alta situada en la prestigiosa zona de PAU 26, Orihuela Costa, un enclave privilegiado donde el diseño moderno, el confort y la calidad de vida se dan la mano.. . Esta propiedad seminueva, construida en 2022, cuenta con 76 m2 construidos, una distribución funcional y una magnífica orientación sur, que garantiza luz natural durante todo el día y una agradable sensación de amplitud y bienestar.. . Desde la calle se accede a una urbanización privada y exclusiva, compuesta por solo 24 vecinos, lo que asegura tranquilidad, privacidad y un ambiente selecto. Al entrar en la vivienda nos recibe un amplio y luminoso salón-comedor, perfectamente integrado con una cocina abierta de estilo contemporáneo. Desde el salón se accede a una terraza de 12 m2, equipada con toldo eléctrico y césped artificial, ideal para disfrutar del exterior durante todo el año gracias a su orientación soleada.. La vivienda dispone además de lavadero, dos amplios dormitorios dobles y dos baños completos, ambos con suelo radiante, un detalle de confort que marca la diferencia.. . Desde la terraza, una escalera privada conduce al auténtico protagonista de la vivienda: un impresionante solárium de aproximadamente 71 m2, acondicionado con césped artificial y toldos, creando un espacio perfecto para un exclusivo chill out, reuniones con amigos o momentos de relax absoluto bajo el sol mediterráneo.. . Entre sus calidades destacan el suelo porcelánico, mosquiteras en todas las ventanas, puerta blindada, toldo eléctrico en el balcón y toldo manual en la pérgola del solárium, todo pensado para ofrecer el máximo confort y funcionalidad.. . La vivienda se vende con plaza de garaje incluida y trastero cerrado, aportando comodidad y espacio de almacenamiento adicional.. . La urbanización ofrece una preciosa piscina comunitaria, zonas verdes impecablemente cuidadas y áreas comunes de gran calidad, que convierten el entorno en un auténtico lujo y un espacio ideal tanto para familias como para quienes buscan tranquilidad y bienestar.. . Ubicada a tan solo 3,5 km del mar, la propiedad se encuentra muy cerca de algunas de las playas más emblemáticas de Orihuela Costa, como La Zenia y Playa Flamenca, conocidas por su ambiente familiar, aguas cristalinas y excelentes servicios.. . Además, su proximidad a prestigiosos campos de golf hace de esta vivienda una inversión vacacional altamente demandada, con un elevado potencial de rentabilidad. Una vivienda donde cada detalle ha sido cuidadosamente pensado para ofrecer exclusividad, confort y calidad de vida.. Una oportunidad única que merece ser descubierta. Contáctenos hoy mismo.. Precio: 325.000€ Impuestos y gastos de compraventa No incluidos (según Normativa aplicable). Se informará del desglose de gastos adicionales antes de la reserva.

Localización

Economía

Esta información que se proporciona aquí está sujeta a errores y no forma parte de ningún contrato. La oferta se puede cambiar o retirar sin previo aviso. Los precios no incluyen los costes de compra

POWERED BY HABENO

Cambio de divisas

  • Libras: 281.840 GBP
  • Rublo Ruso: 281.840 RUB
  • Franco Suizo: 298.285 CHF
  • Yuan Chino: 2.587.845 CNY
  • Dolar: 374.303 USD
  • Corona Sueca: 3.535.350 SEK
  • Corona Noruega: 3.636.263 NOK

Solicitar Información

Responsable del tratamiento: MAINDAMA GROUP S.L, Finalidad del tratamiento: Gestión y control de los servicios ofrecidos a través de la página Web de Servicios inmobiliarios, Envío de información a traves de newsletter y otros, Legitimación: Por consentimiento, Destinatarios: No se cederan los datos, salvo para elaborar contabilidad, Derechos de las personas interesadas: Acceder, rectificar y suprimir los datos, solicitar la portabilidad de los mismos, oponerse altratamiento y solicitar la limitación de éste, Procedencia de los datos: El Propio interesado, Información Adicional: Puede consultarse la información adicional y detallada sobre protección de datos Aquí.