Obra Nueva     Reventa    
Propiedades

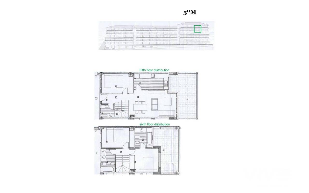
Penthouse · Nueva construcción Alicante (Costa Blanca) · Relleu · pueblo

Ref.: 59217
128m2 3 2

Características clave

Habitaciones: 3
Baños: 2
Construidos: 128m2
Calificación energética: B

Características

Near Commercial Center
Communal Pool
Elevator/Lift
Air Conditioning: Yes
Parking - Space
Toilet: 1
Double Bedrooms: 3
Terrace: 32 Msq.
Beach: 14000 Meters
Location: Coastal, Rural, Urbanisation
Useable Build Space: 121 Msq.
Gimnasia
Gated
Near Schools
Calificación energética
Calificación energética: B

Descripción

Complejo residencial en Relleu con piscina comunitaria y vistas despejadas Se trata de una renovación completa de un edificio construido hace varios años que quedó sin terminar. Es el lugar ideal para aquellos que desean una vivienda de calidad en una ubicación privilegiada con todos los servicios cerca. El edificio tiene 7 plantas con 2 escaleras y 2 ascensores. En el sótano hay 69 plazas de aparcamiento y 42 trasteros. En la planta baja hay una piscina cubierta climatizada, una gran sala para uso de todos los propietarios y dos locales comerciales. En la azotea hay una piscina exterior con terrazas. Disfrute cocinando en la moderna cocina y en los salones con impresionantes vistas, y relájese en la amplia terraza con vistas a la impresionante naturaleza de Relleu. Desde las terrazas hay unas vistas espectaculares y completamente despejadas. Las montañas, el nuevo lago y las zonas deportivas del pueblo son preciosas. La orientación es sureste, por lo que todas las terrazas tienen sol desde primera hora de la mañana hasta primera hora de la tarde. Ver el amanecer desde su terraza puede ser una experiencia maravillosa. Posibilidad de plaza de aparcamiento subterráneo y trastero con un coste adicional. Relájese - En la piscina: sumérjase en un oasis de serenidad y deje atrás el estrés diario mientras nada en nuestra refrescante piscina. - Sauna: libere toda la tensión y disfrute de nuestra lujosa sauna. El calor relajante relaja los músculos y purifica la mente, dejándole completamente rejuvenecido después de cada sesión. Haga ejercicio - Gimnasio: alcance sus objetivos de fitness sin salir de la comodidad de su hogar. Nuestro gimnasio de última generación está equipado con lo último en equipamiento, lo que le da la libertad de entrenar a su propio ritmo y a su manera. Tanto si busca un entrenamiento intenso, un baño relajante o simplemente un momento de paz y reflexión, nuestro complejo de apartamentos le ofrece todo lo que necesita para llevar un estilo de vida equilibrado. Relleu es un hermoso y tranquilo pueblo de montaña donde conviven personas de diferentes nacionalidades. Relleu se encuentra a 15 km de la autopista del Mediterráneo, a 18 km de la playa de Villajoyosa y a 25 km de la playa de Benidorm. El pueblo de Relleu es el lugar perfecto para los amantes de la montaña, el ciclismo, el senderismo, el barranquismo y otros deportes. La ruta del embalse, con su famoso puente peatonal, conduce directamente al pueblo. Estas montañas son el escenario ideal para practicar motociclismo o ciclismo. 278

Localización

Economía

Esta información que se proporciona aquí está sujeta a errores y no forma parte de ningún contrato. La oferta se puede cambiar o retirar sin previo aviso. Los precios no incluyen los costes de compra

POWERED BY HABENO

Cambio de divisas

  • Libras: 206.591 GBP
  • Rublo Ruso: 206.591 RUB
  • Franco Suizo: 218.936 CHF
  • Yuan Chino: 1.905.595 CNY
  • Dolar: 278.746 USD
  • Corona Sueca: 2.575.160 SEK
  • Corona Noruega: 2.606.695 NOK

Solicitar Información

Responsable del tratamiento: MAINDAMA GROUP S.L, Finalidad del tratamiento: Gestión y control de los servicios ofrecidos a través de la página Web de Servicios inmobiliarios, Envío de información a traves de newsletter y otros, Legitimación: Por consentimiento, Destinatarios: No se cederan los datos, salvo para elaborar contabilidad, Derechos de las personas interesadas: Acceder, rectificar y suprimir los datos, solicitar la portabilidad de los mismos, oponerse altratamiento y solicitar la limitación de éste, Procedencia de los datos: El Propio interesado, Información Adicional: Puede consultarse la información adicional y detallada sobre protección de datos Aquí.