Neubau     Wiederverkauf    
Immobilien

Wohnung · Neubau Murcia (Costa Calida) · Aguilas · Collados

Ref.: 66049
61m2 2 1 Ja

Hauptmerkmale

Zimmer: 2
Badezimmer: 1
Gebaut: 61m2
Energieeffizienzklasse: E

Charakteristik

Möbliert
Gated
Near Schools
Communal Pool
Elevator/Lift
Parking - Space
Number of Parking Spaces: 1
Location: Coastal, Urbanisation
Double Bedrooms: 2
Beach: 1000 Meters
Terrace: 6 Msq.
Useable Build Space: 50 Msq.
Licensed Tourist Property
Energieeffizienzklasse
Energiebewertung: E

Beschreibung

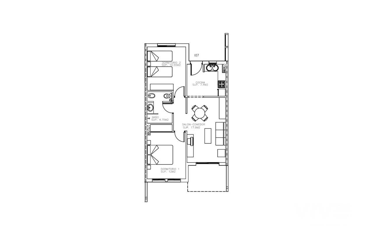
Ferienwohnungen als Kapitalanlage in Strandnähe in Águilas-Murcia Exklusive Wohnanlage in Los Collados-Águilas Entdecken Sie diese exklusive Ferienwohnanlage in Los Collados, einer der attraktivsten Wohngegenden von Águilas in der Region Murcia. Eingebettet in die bekannte Wohnsiedlung Collados Zieschang bietet diese Anlage eine perfekte Kombination aus Natur, Lebensart an der Küste und Investitionspotenzial. Der Komplex liegt nur 1 km vom Strand entfernt und ist umgeben von atemberaubenden Landschaften wie der Sierra de Almenara, Cabo Cope und Calabardina, was ihn zu einem idealen Ziel für Naturliebhaber, Wanderfreunde und alle macht, die Ruhe am Meer suchen. Intelligente Investition mit Mietverwaltung und Mehrwertsteuervorteilen Diese Anlage richtet sich an Investoren, die nach einer sicheren und unkomplizierten Anlagemöglichkeit suchen. Der Komplex verfügt über eine Touristenlizenz und wird von einem professionellen Betreiber verwaltet. Eigentümer können die Wohnung bis zu 2 Monate pro Jahr selbst nutzen, während die Verwaltungsgesellschaft die Vermietung für den verbleibenden Zeitraum übernimmt und so konstante Einnahmen generiert. Zudem ermöglicht diese Art der Investition eine Mehrwertsteuerrückerstattung, was erhebliche finanzielle Vorteile bietet und die Gesamtrendite verbessert. Vollständig möblierte, bezugsfertige Wohnungen Der 2008 erbaute Komplex besteht aus 87 Wohnungen, verteilt auf 4 Gebäude mit Erdgeschoss und zwei Obergeschossen, alle mit Aufzug und direkter Anbindung an die Tiefgarage. Jede Wohnung verfügt über 2 Schlafzimmer, 1 Badezimmer, eine voll ausgestattete Küche und einen hellen Wohn- und Essbereich mit Zugang zu einer privaten Terrasse. Alle Wohnungen sind mit einer Klimaanlage (warm und kalt) ausgestattet, und jede Einheit verfügt über einen zugewiesenen Tiefgaragenstellplatz. Die Wohnungen werden komplett möbliert und mit Haushaltsgeräten wie Kühlschrank, Waschmaschine, Backofen, Mikrowelle und Cerankochfeld übergeben, sodass sie sofort bezugs- oder vermietungsfertig sind. Vielfältige Grundrisse und Außenbereiche Die Anlage bietet verschiedene Wohnungstypen für unterschiedliche Vorlieben. Die Einheiten im Erdgeschoss verfügen über Terrassen oder private Gärten mit einer Größe von 6 bis 86 m². Die Wohnungen im ersten Stock verfügen über Terrassen von rund 6 m², während die Penthäuser im obersten Stockwerk eine Terrasse sowie ein privates Dach-Solarium von ca. 37 m² bieten – ideal, um das mediterrane Klima zu genießen. Gemeinschaftsbereiche und Lifestyle Bewohner und Gäste können einen großen Außenpool inmitten von gepflegten Gärten sowie einen während der Sommermonate geöffneten Barbereich genießen. Der Komplex ist so konzipiert, dass er das ganze Jahr über Entspannung, Komfort und Urlaubsstimmung bietet. Erstklassige Lage und Entfernungen Stadtzentrum von Águilas 3 km Strand von Calabardina 3 km Naturgebiet Cabo Cope 10 km Lorca 35 km Internationaler Flughafen Murcia 75 km Ihre Chance an der Costa Cálida Dies ist eine ideale Gelegenheit, persönlichen Genuss mit einer rentablen Investition in einer wunderschönen Küstenlage zu verbinden. Kontaktieren Sie uns noch heute, um weitere Informationen zu erhalten oder einen Besichtigungstermin zu vereinbaren und sich Ihre Wohnung in Águilas zu sichern. 278

Lage

Wirtschaft

Währungsrechner Text

POWERED BY HABENO

Geldwechsel

  • Pfund : 95.483 GBP
  • Russischen Rubel: 95.483 RUB
  • Schweizerfranken: 101.189 CHF
  • Chinesischen Yuan: 880.737 CNY
  • Dollar: 128.832 USD
  • Schwedische Krone: 1.190.200 SEK
  • Norwegische Krone: 1.204.775 NOK

Anfrage Informationen

Responsable del tratamiento: MAINDAMA GROUP S.L, Finalidad del tratamiento: Gestión y control de los servicios ofrecidos a través de la página Web de Servicios inmobiliarios, Envío de información a traves de newsletter y otros, Legitimación: Por consentimiento, Destinatarios: No se cederan los datos, salvo para elaborar contabilidad, Derechos de las personas interesadas: Acceder, rectificar y suprimir los datos, solicitar la portabilidad de los mismos, oponerse altratamiento y solicitar la limitación de éste, Procedencia de los datos: El Propio interesado, Información Adicional: Puede consultarse la información adicional y detallada sobre protección de datos Aquí.