Neubau     Wiederverkauf    
Immobilien

Detached Villa · Neubau Alicante (Costa Blanca) · Rojales · Ciudad quesada

Ref.: 54969
284m2 <557m2 3 3 Ja

Hauptmerkmale

Zimmer: 3
Badezimmer: 3
Gebaut: 284m2
Grundstück: 557m2
Energieeffizienzklasse: B

Charakteristik

Garten
Private pool
Gated
Near Golf / Golf Resort Property
Near Schools
Near Commercial Center
Under-Build / Basement
Parking - Space - Garage - Double Garage
Storage / Trastero
Double Bedrooms: 3
Terrace: 20 Msq.
Number of Parking Spaces: 2
Beach: 7000 Meters
Useable Build Space: 154 Msq.
Energieeffizienzklasse
Energiebewertung: B

Beschreibung

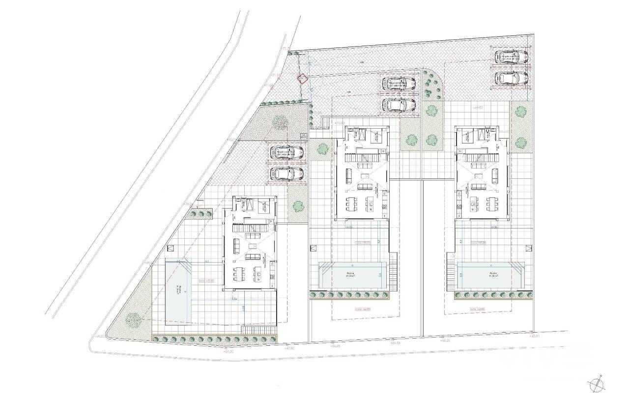
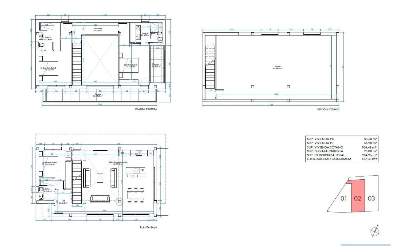
Neubauvilla in Rojales – Modernes Design und erstklassige Lage Entdecken Sie diese atemberaubende Neubauvilla in Ciudad Quesada, Rojales, die mit einer perfekten Balance aus Stil, Komfort und Funktionalität gestaltet wurde. Umgeben von Natur und in der Nähe aller wichtigen Dienstleistungen ist dieses Haus die ideale Wahl für alle, die ein hochwertiges Leben im Herzen der Costa Blanca suchen. Großzügiger Grundriss mit hochwertiger Ausstattung Diese Villa wurde sorgfältig entworfen, um viel Tageslicht und offene Räume zu schaffen. Sie umfasst: Ein großes Untergeschoss mit ausgezeichneter Belüftung und Tageslicht, ideal für verschiedene Nutzungen. Erdgeschoss mit einem Wohnzimmer mit doppelter Deckenhöhe, offener Küche mit Kochinsel, einem Schlafzimmer und einem Badezimmer. Obergeschoss mit zwei Schlafzimmern mit eigenem Bad, jedes mit Zugang zu privaten Terrassen. Die Villa bietet außerdem einen privaten 9 x 3,5 m großen Swimmingpool, einen angelegten Garten und mehrere Terrassen zum Entspannen im Freien. Hochwertige Ausstattung und moderner Komfort Diese Immobilie wurde mit hochwertigen Materialien gebaut und ist ausgestattet mit: Komplett möblierten Badezimmern mit Spiegeln Klimaanlage Fußbodenheizung in den Badezimmern Aerothermischem Warmwassersystem Parkplatz für mehrere Fahrzeuge Erstklassige Lage in Rojales Diese Villa liegt in der charmanten Stadt Rojales und in der Nähe aller wichtigen Dienstleistungen wie Supermärkte, Apotheken, Banken, Restaurants und Naturparks. Nur 10 Minuten vom La Marquesa Golf entfernt, einem der renommiertesten Golfplätze an der Costa Blanca, können die Bewohner ein erstklassiges Golferlebnis inmitten von Tradition und Qualität genießen. Hervorragende Anbindung und Sehenswürdigkeiten in der Nähe Rojales ist strategisch günstig gelegen und bietet eine hervorragende Verkehrsanbindung: La Marquesa Golf – 3 km Strände von Guardamar del Segura – 8 km Torrevieja – 12 km Flughafen Alicante – 40 km Flughafen Murcia – 55 km Darüber hinaus gewährleisten die Autobahnen N-332 und AP-7 eine schnelle Anbindung an nahegelegene Städte, Einkaufszentren, Yachthäfen und kulturelle Sehenswürdigkeiten. Machen Sie Rojales zu Ihrem neuen Zuhause Ob Sie einen dauerhaften Wohnsitz, einen Rückzugsort für den Urlaub oder eine sichere Investition suchen, diese neu gebaute Villa in Ciudad Quesada bietet Ihnen alles, was Sie für einen mediterranen Lebensstil benötigen. Kontaktieren Sie uns noch heute für weitere Informationen und um einen privaten Besichtigungstermin zu vereinbaren.

Lage

Wirtschaft

Währungsrechner Text

POWERED BY HABENO

Geldwechsel

  • Pfund : 914.025 GBP
  • Russischen Rubel: 914.025 RUB
  • Schweizerfranken: 960.120 CHF
  • Chinesischen Yuan: 8.315.370 CNY
  • Dollar: 1.220.940 USD
  • Schwedische Krone: 11.531.100 SEK
  • Norwegische Krone: 11.387.250 NOK

Anfrage Informationen

Responsable del tratamiento: MAINDAMA GROUP S.L, Finalidad del tratamiento: Gestión y control de los servicios ofrecidos a través de la página Web de Servicios inmobiliarios, Envío de información a traves de newsletter y otros, Legitimación: Por consentimiento, Destinatarios: No se cederan los datos, salvo para elaborar contabilidad, Derechos de las personas interesadas: Acceder, rectificar y suprimir los datos, solicitar la portabilidad de los mismos, oponerse altratamiento y solicitar la limitación de éste, Procedencia de los datos: El Propio interesado, Información Adicional: Puede consultarse la información adicional y detallada sobre protección de datos Aquí.
WhatsApp