Neubau     Wiederverkauf    
Immobilien

Detached Villa · Neubau Alicante (Costa Blanca) · Pinoso · Camino Del Prado

Ref.: 99467
120m2 <10.000m2 3 2 Ja

Hauptmerkmale

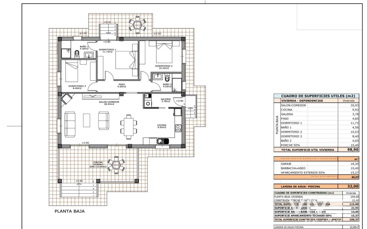
Zimmer: 3
Badezimmer: 2
Gebaut: 120m2
Grundstück: 10.000m2
Energieeffizienzklasse: B

Charakteristik

Private pool
Gated
Near Schools
Air Conditioning: Pre-Installed
Parking - Space
Number of Parking Spaces: 1
Double Bedrooms: 3
Location: Rural
Terrace: 20 Msq.
Useable Build Space: 98 Msq.
Beach: 50000 Meters
Garten
Energieeffizienzklasse
Energiebewertung: B

Beschreibung

NEU GEBAUTE VILLEN IN PINOSO Sie haben die Wahl zwischen Villen mit traditionellem spanischem Flair oder supermoderner Ausstattung, hell und sauber. Es stehen verschiedene legale Baugrundstücke zur Verfügung (rustikal mit mindestens 10.000 m2), einige in Gehdistanz zur Stadt, einige ganz privat und unsere beliebtesten sind nur 5-10 Minuten mit dem Auto von einer Stadt entfernt. Wir haben ein Grundstück für jeden Geschmack, alle mit atemberaubender Aussicht und alle haben Wasser und Strom im Preis inbegriffen und High-Speed-Internet verfügbar. Die Häuser werden vom größten und besten Bauunternehmen in der Gegend gebaut und sind mit hochwertigen Materialien ausgestattet, die für eine perfekte Ausführung sorgen. Alle Häuser verfügen über eine 2 m lange Terrasse aus gestampftem Beton um den Pool (Farbe und Muster nach Wahl), 1 m um das Haus, einen bewachten Eingang, einen 3.000 m2 großen Zaun, eine vorinstallierte Klimaanlage, eine Standardküche, eine Sicherheitstür, deutsche Dreh-Kipp-Fenster (oder Schiebefenster, falls gewünscht), einen eingebauten Kamin, eine Vorinstallation für Fernsehen und Internet, eine Kiesauffahrt und einige Meter um das Haus herum sowie eine Klärgrube. Die Bäder verfügen über eine Duschsäule, eine Duschwanne oder eine Badewanne, Waschbecken (verschiedene Farben zur Auswahl) mit Waschbecken, Armaturen und Spiegeln sowie eine große Auswahl an Wandfliesen. Große Auswahl an keramischen Bodenfliesen, verschiedene Farben, Holzoptik, etc. Die Küchen beinhalten Schränke mit Standardtüren und Griffen, wie in den Plänen angegeben, Edelstahlspüle und Wasserhahn, Vorinstallation für Ofen, Geschirrspüler, Dunstabzug. Verschiedene Granit-Arbeitsplatten zur Auswahl sind im Budget enthalten, andere Stein-Arbeitsplatten sind als Extras erhältlich. Weiße Ware nicht inbegriffen. Marmortreppe (cremefarben, weiß oder grau) und Geländer inbegriffen, plus Geländer für die vordere Veranda. Großes festes Glasfenster auf der Treppe für mehr Licht. Auswahl der Fliesen und der Stufen für das Schwimmbad. Wahl des Granits für die Außentreppen und Fensterbänke des Hauses. Sie können das Haus nach Ihren Wünschen gestalten, die meisten internen Änderungen sind kostenlos, die Häuser können erweitert werden und wir können sogar Ihr eigenes Design bauen. Gegen Aufpreis können Sie einen größeren Pool, eine Einzel- oder Doppelgarage, ein Gästehaus, usw. erwerben. Die schöne und blühende Stadt Pinoso liegt etwa 45 Minuten landeinwärts von Alicante und den weißen Stränden der Costa Blanca und nahe der Grenze zwischen Murcia und Alicante. Sie hat knapp 8.000 Einwohner. Pinoso, auch bekannt als El Pinos, ist nach den Pinien benannt, die die Bergketten der Gegend bedecken. Pinoso bietet ein spanisches Landleben, keine Ampeln, kaum Verkehr, praktisch die einzigen Staus werden von den Traktoren verursacht, die die Trauben zur Bodega bringen. Die Felder sind mit Weinreben, Mandeln und Oliven bepflanzt. Im Februar sind die Felder mit rosa Mandelblüten gefüllt. Pinoso hat viele Bars, Restaurants und Geschäfte, ein neues 24-Stunden-Ärztezentrum, Zahnärzte, zwei Grundschulen und eine weiterführende Schule, ein Theater. Es gibt ein ausgezeichnetes Sportzentrum mit Freibädern, Tennis- und Fußballplätzen, einer Turnhalle, einer Bibliothek und vielen anderen Einrichtungen, darunter ein schöner Picknickplatz unter den Kiefern mit Grillplätzen, Sitzgelegenheiten und fließendem Wasser.

Lage

Wirtschaft

Währungsrechner Text

POWERED BY HABENO

Geldwechsel

  • Pfund : 289.006 GBP
  • Russischen Rubel: 289.006 RUB
  • Schweizerfranken: 303.581 CHF
  • Chinesischen Yuan: 2.629.241 CNY
  • Dollar: 386.050 USD
  • Schwedische Krone: 3.646.024 SEK
  • Norwegische Krone: 3.600.540 NOK

Anfrage Informationen

Responsable del tratamiento: MAINDAMA GROUP S.L, Finalidad del tratamiento: Gestión y control de los servicios ofrecidos a través de la página Web de Servicios inmobiliarios, Envío de información a traves de newsletter y otros, Legitimación: Por consentimiento, Destinatarios: No se cederan los datos, salvo para elaborar contabilidad, Derechos de las personas interesadas: Acceder, rectificar y suprimir los datos, solicitar la portabilidad de los mismos, oponerse altratamiento y solicitar la limitación de éste, Procedencia de los datos: El Propio interesado, Información Adicional: Puede consultarse la información adicional y detallada sobre protección de datos Aquí.
WhatsApp