Neubau     Wiederverkauf    
Immobilien

Apartment / Wohnung · Neubau Alicante (Costa Blanca) · Torrevieja · Los balcones

Ref.: 38956
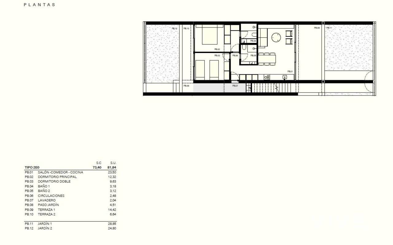
81m2 <53m2 2 2 Ja

Hauptmerkmale

Zimmer: 2
Badezimmer: 2
Gebaut: 81m2
Grundstück: 53m2
Energieeffizienzklasse: B

Charakteristik

Garten
Gated
Near Golf / Golf Resort Property
Near Schools
Air Conditioning: Pre-Installed
Near Commercial Center
Communal Pool
Parking - Space
Storage / Trastero
Number of Parking Spaces: 1
Location: Coastal, Urbanisation
Double Bedrooms: 2
Terrace: 20 Msq.
Beach: 3500 Meters
Useable Build Space: 73 Msq.
Energieeffizienzklasse
Energiebewertung: B

Beschreibung

Neubau-Wohnungen in Los Balcones, Torrevieja Moderne Wohnungen in einer erstklassigen Wohngegend Entdecken Sie diesen attraktiven Neubau-Wohnkomplex in Los Balcones, einem der beliebtesten und etabliertesten Viertel am Stadtrand von Torrevieja. In einer ruhigen Umgebung mit ausgezeichneter Anbindung an alle wichtigen Dienstleistungen gelegen, befindet sich diese Wohnanlage nur 4 km von den Sandstränden der Costa Blanca entfernt. Los Balcones ist bekannt für seine entspannte Atmosphäre, breite Straßen, Grünflächen und die Nähe zu Krankenhäusern, Supermärkten, Restaurants und Einkaufszentren, was es ideal für das ganze Jahr oder als Ferienwohnsitz macht. Moderne Wohnungen mit privaten Außenbereichen Der Komplex besteht aus 52 modernen Wohnungen auf einer Gesamtfläche von 6700 m2. Jede Immobilie verfügt über einen privaten Parkplatz und einen Abstellraum in der Tiefgarage. Die Wohnungen verfügen über 2 oder 3 Schlafzimmer und 2 Badezimmer, eines davon en suite. Käufer können zwischen Wohnungen im Erdgeschoss mit privatem Garten oder Wohnungen in den oberen Etagen mit einer großzügigen Terrasse und einem privaten Solarium wählen. Diese Grundrisse sind so gestaltet, dass sie das natürliche Licht maximieren und komfortable Wohnräume im Innen- und Außenbereich bieten, um das mediterrane Klima das ganze Jahr über genießen zu können. Gemeinschaftsbereiche zum Entspannen Das Projekt ist in vier Blöcke unterteilt, die einen großen zentralen Gemeinschaftsbereich umgeben. Dieses grüne Herzstück der Anlage verfügt über einen Swimmingpool mit einem eigenen Kinderbereich und wunderschön angelegten Gärten. Diese Gemeinschaftsbereiche sind ideal zum Entspannen, für geselliges Beisammensein und für Familienzeit in einer sicheren und freundlichen Umgebung. Hochwertige Ausstattung und energieeffizientes Design Jede Wohnung wurde nach modernen Standards gebaut und verfügt über eine vorinstallierte Klimaanlage, ein aerothermisches Warmwassersystem für verbesserte Energieeffizienz, Außenbeleuchtung und doppelt verglaste Außenfenster. Die Küchen sind komplett ausgestattet und bieten einen funktionalen und stilvollen Raum für das tägliche Leben. Diese Merkmale sorgen für einen hohen Komfort, geringen Wartungsaufwand und reduzierten Energieverbrauch, wodurch die Wohnungen sowohl praktisch als auch nachhaltig sind. Ausgezeichnete Lage in der Nähe von Stränden und Golfplätzen Los Balcones bietet eine strategisch günstige Lage in der Nähe vieler Sehenswürdigkeiten. Die Strände von Torrevieja sind etwa 4 km entfernt. Mehrere renommierte Golfplätze wie Villamartin Golf, Las Ramblas Golf und Campoamor Golf sind innerhalb von 10 bis 15 km zu erreichen. Das Universitätskrankenhaus von Torrevieja ist weniger als 2 km entfernt, was für zusätzlichen Komfort und Sicherheit sorgt. Das Stadtzentrum von Torrevieja ist etwa 5 km entfernt und mit Los Balcones durch eine Busverbindung verbunden. Dort finden Sie eine große Auswahl an Geschäften, Restaurants, kulturellen Einrichtungen und einen lebhaften Yachthafen. Der internationale Flughafen Alicante ist etwa 42 km entfernt und bietet gute internationale Verbindungen. Der Hafen von Torrevieja ist etwa 6 km entfernt. Ideal zum Wohnen oder als Investition Mit seinem modernen Design, den ausgezeichneten Gemeinschaftsbereichen und der erstklassigen Lage in der Nähe von Stränden, Golfplätzen und Dienstleistungen eignet sich dieser neue Wohnkomplex in Los Balcones Torrevieja perfekt als Dauerwohnsitz, Ferienhaus oder Investitionsmöglichkeit. Kontaktieren Sie uns noch heute, um weitere Informationen zu erhalten oder eine Besichtigung dieser neu gebauten Apartments in Los Balcones, Torrevieja, zu vereinbaren.

Lage

Wirtschaft

Währungsrechner Text

POWERED BY HABENO

Geldwechsel

  • Pfund : 225.460 GBP
  • Russischen Rubel: 225.460 RUB
  • Schweizerfranken: 236.830 CHF
  • Chinesischen Yuan: 2.051.125 CNY
  • Dollar: 301.165 USD
  • Schwedische Krone: 2.844.338 SEK
  • Norwegische Krone: 2.808.855 NOK

Anfrage Informationen

Responsable del tratamiento: MAINDAMA GROUP S.L, Finalidad del tratamiento: Gestión y control de los servicios ofrecidos a través de la página Web de Servicios inmobiliarios, Envío de información a traves de newsletter y otros, Legitimación: Por consentimiento, Destinatarios: No se cederan los datos, salvo para elaborar contabilidad, Derechos de las personas interesadas: Acceder, rectificar y suprimir los datos, solicitar la portabilidad de los mismos, oponerse altratamiento y solicitar la limitación de éste, Procedencia de los datos: El Propio interesado, Información Adicional: Puede consultarse la información adicional y detallada sobre protección de datos Aquí.
WhatsApp