Neubau     Wiederverkauf    
Immobilien

Penthouse · Neubau Murcia (Costa Calida) · Murcia · Centro

Ref.: 82394
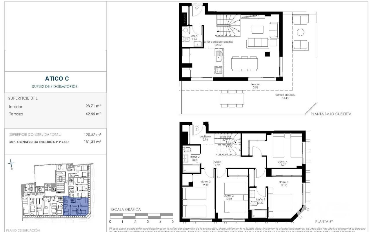
130m2 4 2

Hauptmerkmale

Zimmer: 4
Badezimmer: 2
Gebaut: 130m2
Energieeffizienzklasse: A

Charakteristik

Near Bus Route
Elevator/Lift
Heating: Yes
Parking - Space
Toilet: 1
Double Bedrooms: 4
Beach: 40000 Meters
Terrace: 42 Msq.
Useable Build Space: 98 Msq.
Schlüsselfertig
Near Schools
Near Commercial Center
Energieeffizienzklasse
Energiebewertung: A

Beschreibung

Neubau-Duplex-Penthäuser im Stadtzentrum von Murcia in der Nähe der Plaza Mayor Exklusives Wohnen im Herzen von Murcia Entdecken Sie diese geräumigen Neubau-Duplex-Penthäuser im Zentrum von Murcia, nur wenige Schritte von der Plaza Mayor de Murcia entfernt. Zwischen dem historischen Stadtkern und dem Geschäftsviertel in der Nähe von El Corte Ingles gelegen, bietet diese Wohnanlage eine einzigartige Gelegenheit, modernen Komfort in einer der begehrtesten Lagen der Region Murcia zu genießen. Murcia ist bekannt für sein pulsierendes Stadtleben, seine beeindruckende Barockarchitektur, seine renommierte Gastronomie und sein ganzjährig angenehmes Klima. Das Leben im Stadtzentrum bedeutet, dass Restaurants, Boutiquen, kulturelle Einrichtungen, Schulen und alle wichtigen Dienstleistungen zu Fuß erreichbar sind. Geräumige Duplex-Penthäuser mit 3 und 4 Schlafzimmern und großen Terrassen Diese exklusiven Penthäuser bieten 3 oder 4 Schlafzimmer auf zwei Ebenen und verfügen über großzügige und funktionale Wohnräume, die ideal für Familien oder diejenigen sind, die zusätzlichen Platz für die Arbeit von zu Hause aus suchen. Eines der herausragenden Merkmale sind die weitläufigen privaten Terrassen von mehr als 40 m2, die einen freien Blick und viel Tageslicht bieten. Diese Außenbereiche eignen sich perfekt zum Entspannen, zur Unterhaltung von Gästen oder zum Genießen von Mahlzeiten im Freien im Stadtzentrum. Das Gebäude verfügt über einen Aufzug und ist für Menschen mit eingeschränkter Mobilität vollständig barrierefrei. Optional sind gegen Aufpreis Parkplätze und Abstellräume erhältlich, die diesen erstklassigen Standort noch komfortabler machen. Hochwertige Ausstattung und Energieeffizienz Jedes Penthouse wurde so konzipiert, dass es maximalen Komfort und Effizienz bietet. Die voll ausgestattete Küche mit integrierten Geräten ist der perfekte Ort für Kochbegeisterte. Zu den wichtigsten Merkmalen gehören: Energieeffizienzklasse A Voll installierte Klimaanlage mit Luftkanälen Fußbodenheizung Hausautomationspaket Video-Gegensprechanlage LED-Beleuchtung im Wohnzimmer, in den Badezimmern und Schlafzimmern Diese hochwertigen Ausstattungsmerkmale sorgen für einen geringen Energieverbrauch, reduzierte Emissionen und optimalen thermischen Komfort das ganze Jahr über. Erstklassige Lage und Entfernungen Kathedrale von Murcia 0,5 km Plaza Mayor de Murcia 0,3 km Bahnhof Murcia 1,5 km Altorreal Golf 15 km Internationaler Flughafen Murcia 25 km Mittelmeerstrände 50 km Sichern Sie sich Ihr Luxus-Penthouse in Murcia Diese neu gebauten Duplex-Penthäuser verbinden Geräumigkeit, Energieeffizienz und eine unschlagbare zentrale Lage in Murcia. Kontaktieren Sie uns noch heute, um weitere Informationen zu erhalten oder einen privaten Besichtigungstermin zu vereinbaren und sich Ihr neues Zuhause im Herzen der Stadt zu sichern. 278

Lage

Wirtschaft

Währungsrechner Text

POWERED BY HABENO

Geldwechsel

  • Pfund : 512.138 GBP
  • Russischen Rubel: 512.138 RUB
  • Schweizerfranken: 542.741 CHF
  • Chinesischen Yuan: 4.723.953 CNY
  • Dollar: 691.008 USD
  • Schwedische Krone: 6.383.800 SEK
  • Norwegische Krone: 6.461.975 NOK

Anfrage Informationen

Responsable del tratamiento: MAINDAMA GROUP S.L, Finalidad del tratamiento: Gestión y control de los servicios ofrecidos a través de la página Web de Servicios inmobiliarios, Envío de información a traves de newsletter y otros, Legitimación: Por consentimiento, Destinatarios: No se cederan los datos, salvo para elaborar contabilidad, Derechos de las personas interesadas: Acceder, rectificar y suprimir los datos, solicitar la portabilidad de los mismos, oponerse altratamiento y solicitar la limitación de éste, Procedencia de los datos: El Propio interesado, Información Adicional: Puede consultarse la información adicional y detallada sobre protección de datos Aquí.