Neubau     Wiederverkauf    
Immobilien

Wohnung · Verkauf Alicante (Costa Blanca) · Orihuela Costa · PAU 26

Ref.: PF-12984
76m2 2 2 Ja

Hauptmerkmale

Zimmer: 2
Badezimmer: 2
Gebaut: 76m2
Energieeffizienzklasse: B

Charakteristik

Küchengeräte
Terrasse
Gemeinschaftspool
Wohnhaft
Gepanzerte Tür
Garage
Solarium
Heizung
Balkon
Beleuchtung
Wasser
Laube
Wäscherei
Telefon
Einbauschränke
Storeroom
Furniture
Energieeffizienzklasse
Energiebewertung: B

Beschreibung

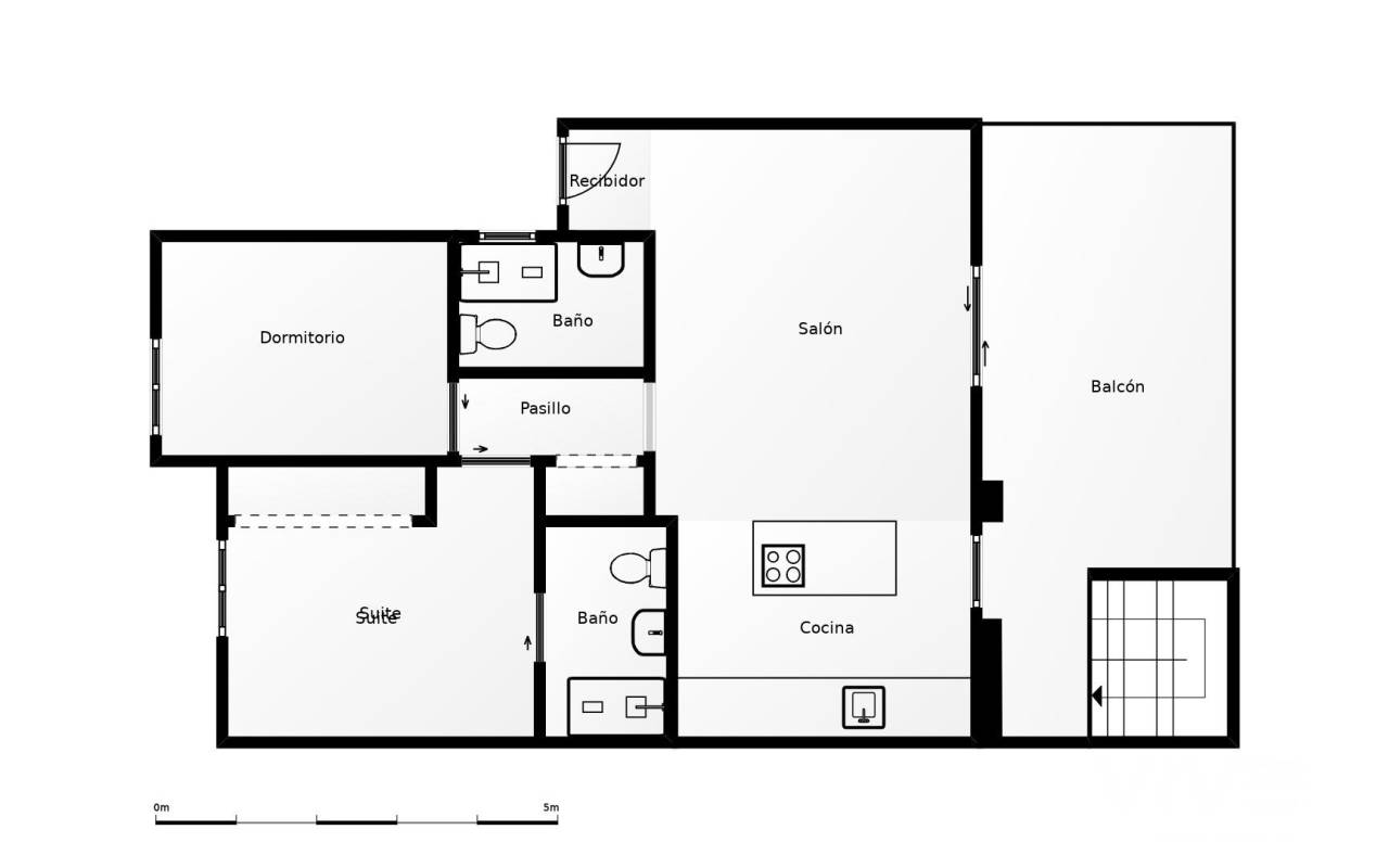
Entdecken Sie dieses außergewöhnliche Bungalow-Apartment in oberster Etage in der prestigeträchtigen Gegend PAU 26, Orihuela Costa, wo modernes Design, Komfort und Lebensqualität perfekt miteinander verschmelzen.. . Diese neuwertige Immobilie aus dem Jahr 2022 verfügt über 76 m2 Wohnfläche, eine funktionale Raumaufteilung und eine hervorragende Südausrichtung, die den ganzen Tag über für viel natürliches Licht sorgt.. . Der Zugang erfolgt über eine private und exklusive Wohnanlage mit nur 24 Einheiten, die Ruhe, Privatsphäre und ein gehobenes Wohnambiente garantiert. Beim Betreten empfängt Sie ein helles und großzügiges Wohn-Esszimmer mit moderner offener Küche. Von hier aus gelangen Sie auf den 12 m2 großen Balkon, ausgestattet mit elektrischer Markise und Kunstrasen, ideal, um das mediterrane Klima das ganze Jahr über zu genießen.. Die Immobilie verfügt außerdem über einen Hauswirtschaftsraum, zwei geräumige Doppelschlafzimmer und zwei voll ausgestattete Badezimmer, beide mit Fußbodenheizung, die höchsten Wohnkomfort bieten.. . Vom Balkon führt eine private Treppe zum Highlight der Immobilie: einem beeindruckenden privaten Solarium von ca. 71 m2, ausgestattet mit Kunstrasen und Markisen, perfekt für einen exklusiven Chill-out-Bereich oder entspannte Stunden unter der Sonne.. . Zu den Ausstattungsmerkmalen gehören Feinsteinzeugböden, Fliegengitter an allen Fenstern, Sicherheitseingangstür, elektrische Markise auf dem Balkon sowie eine manuelle Markise an der Pergola des Solariums.. . Die Immobilie wird inklusive privatem Stellplatz und abgeschlossenem Abstellraum verkauft.. . Die Wohnanlage bietet einen wunderschönen Gemeinschaftspool, sehr gepflegte Grünanlagen und hochwertige Gemeinschaftsbereiche – ein echtes Luxusambiente.. . Nur 3,5 km vom Meer entfernt, befinden sich die beliebten Strände La Zenia und Playa Flamenca in unmittelbarer Nähe, bekannt für ihre kristallklaren Gewässer und hervorragende Infrastruktur.. . Dank der Nähe zu renommierten Golfplätzen ist diese Immobilie zudem eine sehr gefragte Ferieninvestition mit hohem Vermietungspotenzial.. . Eine Immobilie, die Exklusivität, Komfort und mediterranes Lebensgefühl vereint.. Eine einmalige Gelegenheit – kontaktieren Sie uns noch heute.. Preis: 325.000 €. Steuern und Kaufnebenkosten nicht inbegriffen (gemäß geltender Gesetzgebung). Eine Aufstellung der zusätzlichen Kosten wird vor der Reservierung zur Verfügung gestellt.

Lage

Wirtschaft

Währungsrechner Text

POWERED BY HABENO

Geldwechsel

  • Pfund : 283.296 GBP
  • Russischen Rubel: 283.296 RUB
  • Schweizerfranken: 300.008 CHF
  • Chinesischen Yuan: 2.615.698 CNY
  • Dollar: 383.403 USD
  • Schwedische Krone: 3.510.975 SEK
  • Norwegische Krone: 3.580.525 NOK

Anfrage Informationen

Responsable del tratamiento: MAINDAMA GROUP S.L, Finalidad del tratamiento: Gestión y control de los servicios ofrecidos a través de la página Web de Servicios inmobiliarios, Envío de información a traves de newsletter y otros, Legitimación: Por consentimiento, Destinatarios: No se cederan los datos, salvo para elaborar contabilidad, Derechos de las personas interesadas: Acceder, rectificar y suprimir los datos, solicitar la portabilidad de los mismos, oponerse altratamiento y solicitar la limitación de éste, Procedencia de los datos: El Propio interesado, Información Adicional: Puede consultarse la información adicional y detallada sobre protección de datos Aquí.